2664 Roosevelt Street
2664 Roosevelt Street
2664 Roosevelt Street
2664 Roosevelt Street
2664 Roosevelt Street
2664 Roosevelt Street
2664 Roosevelt Street
SEE ALL PHOTOS
2664 Roosevelt Street
2664 Roosevelt Street
2664 Roosevelt Street
2664 Roosevelt Street
2664 Roosevelt Street
2664 Roosevelt Street
2664 Roosevelt Street
Listed by Tommy Crudo CA DRE# 01468953 with Compass [email protected]
Sold

2664 Roosevelt Street

2664 Roosevelt Street, Carlsbad, CA 92008

$3,001,250
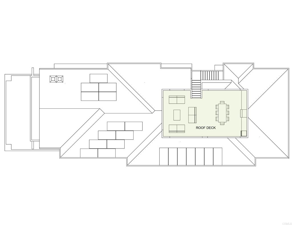
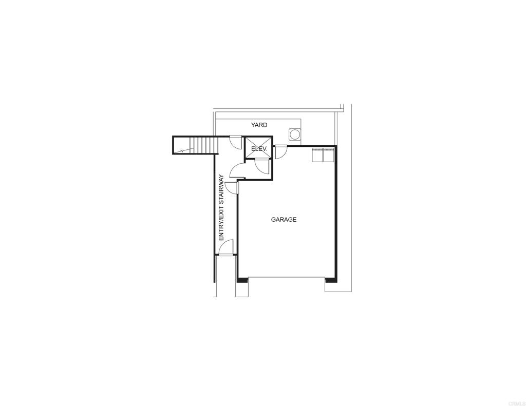
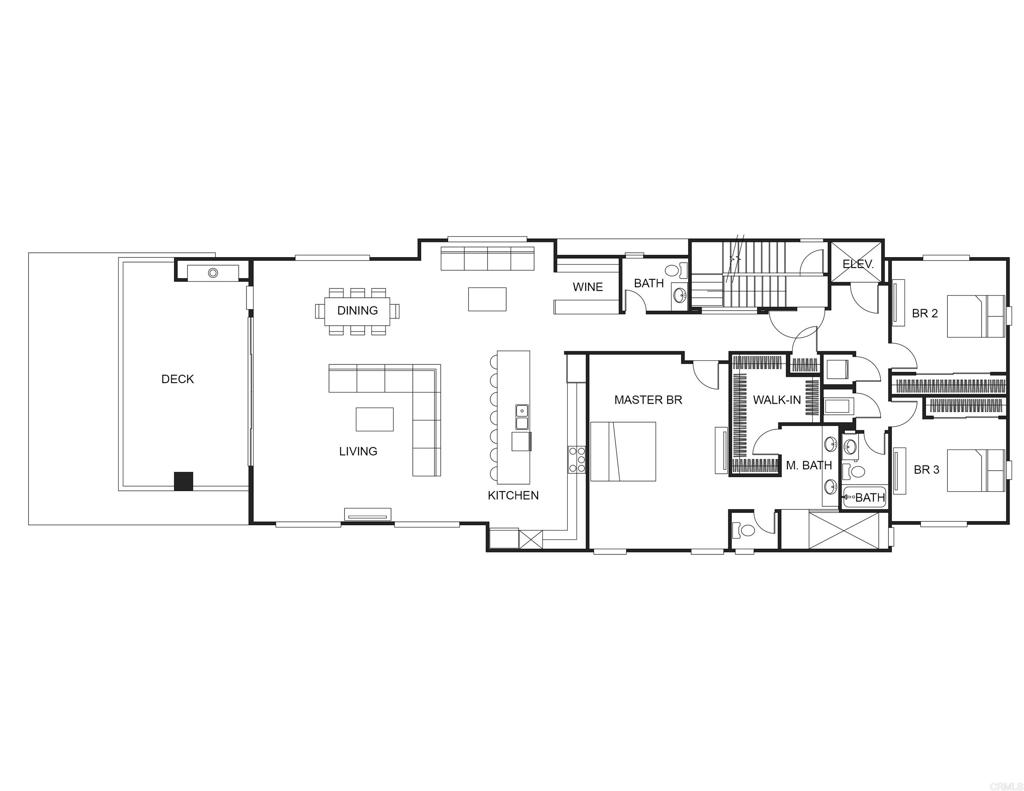
LAST PENTHOUSE UNIT WITH PRIVATE ROOF DECK. Roosevelt Nine is a new construction luxury condo development located in the heart of Carlsbad Village. 2664 is a single level 3 bed / 2.5 bath home located on the third floor. This is top floor of the most northern building - A on site plan. Beach chic design theme featuring: open concept layout connecting to a balcony (328 sf), large kitchen island, solid surface quartz countertops & matching backsplash, custom European slab cabinets, brushed gold kitchen hardware, Thermador appliances and carefully selected designer details throughout. Tons of natural light from oversized windows and balcony slider door. Large bedrooms. Enjoy the sunsets and neighborhood views from a private 600 sf roof deck. Private 526 sf garage and private elevator opening directly into the home. Has a ground level side-yard off garage. Owned solar. Conveniently situated in the heart of Carlsbad Village, location offers near immediate access to award winning restaurants, coffee shops, and the Carlsbad Village Train Station. A leisurely 10-minute walk west on Grand Ave leads to the beach.

3
beds

3
baths

2,875 Sq.Ft. LIVING AREA

0.44 Acres lot

Christina Thomas

Christina Thomas

Features & Amenities

Interior

  • total bedrooms3
  • Total bathrooms3
  • full bathrooms2
  • half bathroom1
  • Laundry room Laundry Closet
  • Flooring Vinyl
  • Fireplace Decorative
  • other interior Features Bedroom on Main Level, Primary Suite, Walk-In Pantry, Walk-In Closet(s)

Area & Lot

  • Status Sold
  • Living Area2,875 Sq.Ft.
  • Lot Area0.44 Acres
  • MLS® IDNDP2408541
  • TypeCondo
  • YEAR BUILT2024
  • NeighborhoodCarlsbad
  • View DescriptionNeighborhood
  • School DistrictCarlsbad Unified

Exterior

  • STORIES1
  • Garage Space2.0
  • PoolNone
  • parkingGarage
  • HEAT TYPEHeat Pump
  • AIR CONDITIONINGCentral Air
  • HOA AmenitiesMaintenance Grounds, Management, Maintenance Front Yard

Financial

  • Sales Price$3,001,250
  • HOA $575/mo
  • Zoning Residential / multifamily
View Virtual Tour

Carlsbad

Explore

Follow Us on Instagram

CONTACT US